Willa parterowy dom.
Wola Rzędzińska gm. Tarnów Pokaż na mapie ›
Odświeżone: Wtorek, 07 Październik, 2025 11:08
1 000 000 zł
5319 zł/m2
Szczegóły ogłoszenia
- Kategoria: Domy / Sprzedaż
- Powierzchnia:188 m2
- Liczba pokoi:4 pokoje
- Pow. działki:12000 m2
- Rynek:Pierwotny
- Rok budowy:2025
- Sprzedaż:Pośrednik
- Cena: 1 000 000 zł / 5319 zł/m2
Opis oferty
Willa marzeń w Woli Rzędzińskiej – dom parterowy z antresolą nadziałce od 10 arów!
Tylko w KNC Nieruchomości – oferta na wyłączność
Jeśli marzysz o nowoczesnym, przestronnym domu w spokojnej okolicy
– ta oferta jest dla Ciebie! Oferujemy na sprzedaż parterowy,
wolnostojący dom z antresolą, który zostanie wybudowany na w pełni
uzbrojonych działkach o powierzchni od 10 arów – z możliwością
zakupu także działki 16-arowej!
Najważniejsze informacje:
Powierzchnia domu (z garażem): 149,36 m²
Powierzchnia całkowita z antresolą i strychem: 188,80 m²
Działki do wyboru: od 10 do 16 arów
Status działek: w pełni uzbrojone
Czas realizacji budowy: 12–18 miesięcy od zakupu działki (akt
notarialny)
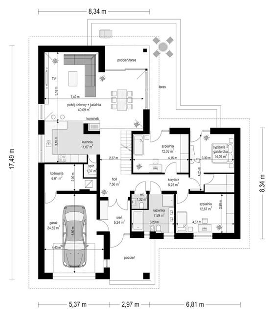
Willa została podzielona na trzy strefy:
I. Strefa gospodarcza
Garaż jednostanowiskowy – 24,52 m²
Kotłownia – 6,61 m²
Strych nad garażem – 28 m² – idealny na przechowywanie
II.Strefa dzienna – serce domu
Przestronny salon z jadalnią – 40,09 m²
Otwarta kuchnia – 11,07 m²
Kominek między salonem a kuchnią
Antresola nad salonem – doskonała na bibliotekę, gabinet lub
pokój rekreacyjny
III. Strefa prywatna
Trzy sypialnie:
Główna z garderobą – 14,09 m²
Dwie z szafami wnękowymi – 12,03 m² i 12,67 m²
Nowoczesna łazienka – 7,59 m²
Oddzielne WC – 1,32 m²
Dodatkowy strych nad częścią sypialnianą – dostęp z antresoli
Standard deweloperski – wysoka jakość i wygoda.
Technologia: bloczki Ytong, blachodachówka
Ogrzewanie podłogowe, piec gazowy dwufunkcyjny
Rolety antywłamaniowe, okna trzyszybowe, Klimatyzacja w kazdym pokoju
Drzwi antywłamaniowe, brama garażowa
Wysokiej jakości tynki – gładzie
Dodatkowe atuty:
Działka wyrównana, przygotowana pod kostkę brukową
Możliwość wykonania dodatkowych prac:
Pełnego ogrodzenia
Rekuperacji, fotowoltaicznych paneli,
Odkurzacza centralnego
Układania kostki brukowej
Prace dodatkowe – do indywidualnego ustalenia z deweloperem.
Lokalizacja zrealizowana z sukcesem – zobacz dom pokazowy!
Zainteresowanych zapraszamy do kontaktu:
Jerzy – 534 - pokaż numer telefonu -
Magdalena – 534 - pokaż numer telefonu -
Sprawdź zainteresowanie tym ogłoszeniem
Wyświetlenia
Data dodania
Ostatnio widziany
Obserwujących
Wysłane zapytania
Odsłony telefonu
Powiadom o podobnych ogłoszeniach
Lokalizacja: Wola Rzędzińska
Kategoria: Nieruchomości » Domy » Sprzedaż
Cena: od 850000 zł do 1150000 zł Powierzchnia : od 160 m2 do 216 m2
Chcę otrzymywać powiadomienia o nowych ofertach
KNC Nieruchomości Sp.zo.o.
Konto firmowe
Na Lento.pl od 04 kwi 2024
Strona użytkownika
- Wypromuj ogłoszenie
- Zgłoś naruszenie
- Drukuj ulotkę
- Edytuj/usuń ogłoszenie
- Udostępnij ogłoszenie
- Dodaj na Facebook















